Skip links
Skip to primary navigation
Skip to content
الرئيسية
من نحن
تخصصنا الهندسي
مشاريعنا
البروشور
تواصل معنا
English
تواصل معنا
733226583 967+
Toggle navigation
الرئيسية
من نحن
تخصصنا الهندسي
مشاريعنا
البروشور
تواصل معنا
English
Published in:
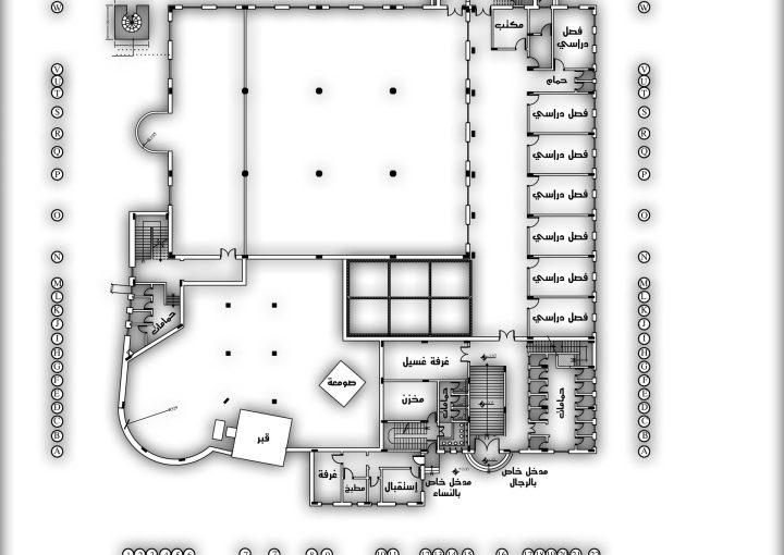
مساجد
المساجد
المشروع 01
المشروع 02
OLYMPUS DIGITAL CAMERA
المشروع 03
Adding {{itemName}} to cart
Added {{itemName}} to cart
Loading...